£125,000 +VAT

, Podimore, Yeovil

  • Building Plot With Planning Permission Granted
  • Detached Four Bedroom Family Home
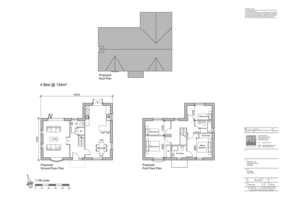
  • 124 sqm / 1,334 sqft
  • Double Aspect Living Room & Generous Kitchen/Diner
  • WC, Family Bathroom & En Suite Shower Room
  • Private Garden & Parking
  • Planning Ref - 25/00678/FUL. (Somerset Council)
Arrange a Viewing

Location

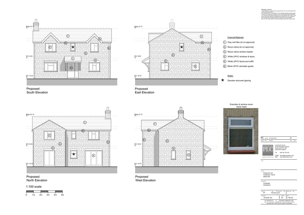
An excellent opportunity to acquire a building plot located adjacent to The Podimore Inn in the village of Podimore, Somerset, with full planning permission granted for the construction of a four bedroom detached dwelling extending to approximately 124 sq m (1,334 sq ft).

The approved accommodation will provide well-proportioned living space including a large kitchen/dining room, double aspect living room, and cloakroom/WC on the ground floor. The first floor will comprise four bedrooms, including a principal bedroom with en-suite, together with a family bathroom.

Externally, the property will benefit from a private garden and allocated parking. Prospective purchasers should note that VAT is applicable to the purchase.

There is a Community Infrastructure Levy (CIL) payment of £6,901.64 and a phosphate mitigation balance of £19,550 payable. Biodiversity Net Gain (BNG) is to be provided on site.

Planning permission has been granted by Somerset Council under reference 25/00678/FUL.

Further information, including planning documents and site details, is available upon request.