£359,995

Berechurch Hall Road, , Colchester

  • BUILD COMPELTE - READY TO BE OCCUPIED WITHOUT DELAY
  • An Excellent Three Bedroom End Of Terrace Family Home
  • South Colchester Location & In Easy Access Of An Array Of Local Amenities & Bus Transport Links
  • Focal Kitchen-Diner With A Full Range Of Integral Appliances
  • Added Luxury Of A Utility Room
  • Benefitting From A Ground Floor Cloakroom
  • Spacious & Light Reception Room
  • Two Excellent Double Bedrooms & Further Single Bedroom
  • En-Suite & First Floor Family Bathroom
  • Allocated Parking & Private Enclosed Rear Garden
Floorplan Arrange a Viewing

Location

**BUILD COMPLETE - READY TO BE OCCUPIED WITHOUT DELAY** Plot 112 - The Charnwood - This thoughtfully-designed three-bedroom home offers a stylish open plan kitchen/dining room and separate utility with garden access. The Charnwood Corner features a bright dual-aspect living room with French doors leading into the garden, two storage cupboards and a downstairs WC. Upstairs there are three good-sized bedrooms - bedroom one with an en suite - a modern family bathroom and three further storage cupboards. Complete with off road parking.

Persimmon Homes Ethos - When it comes to designing a new development, Persimmon homes apply the same philosophy every time – make it unique, make it personal. That’s because they understand your new home is more than simply bricks and mortar. It’s a private place of sanctuary where we hope you’ll laugh, entertain and escape for many years to come.

Location - On the outskirts of historic Colchester, St Michael’s Place offers a range of two, three and four-bedroom homes, close to great attractions and family-friendly amenities s. Formerly the Roman capital of Britain, the city is now a bustling hub thanks to its position 50 miles north-east of London. The attractive centre is well-stocked with high street and independent stores, bars, restaurants, cafés and music venues. When you’re not enjoying the shops, cuisine and vibrant nightlife, there are plenty of local attractions to explore, including Colchester Zoo – one of the finest zoos in Europe. An array of education is moments away, with the immediate area being served by a well connected bus network, to the city centre and surrounding stations.

Ideal for the expanding family, working professional and couple alike. Early enquiries and reservations are encouraged to prevent inevitable disappointment.

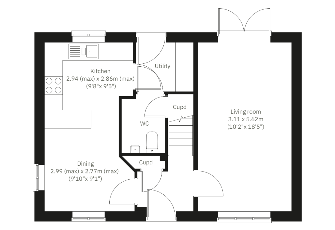
Ground Floor

Entrance Hall

Kitchen-Diner

Kitchen - 9' 8" x 9' 5" (2.95m x 2.87m)

Dining - 9' 10" x 9' 1" (3.00m x 2.77m)

Utility Room

Downstairs Cloakroom

Reception Room

18' 5" x 10' 2" (5.61m x 3.10m)

First Floor

Landing

Master Bedroom

10' 5" x 10' 2" (3.17m x 3.10m)

En-Suite

Bedroom Two

13' 2" x 9' 5" (4.01m x 2.87m)

Bedroom Three

8' 9" x 7' 5" (2.67m x 2.26m)

Family Bathroom