£400,000

Alexandra Road, , Colchester

  • Freehold Investment In Central Colchester Location
  • Fully Let 7 Bedroom HMO With Established Tenants
  • Generating Approximately £45,480 Per Annum Income
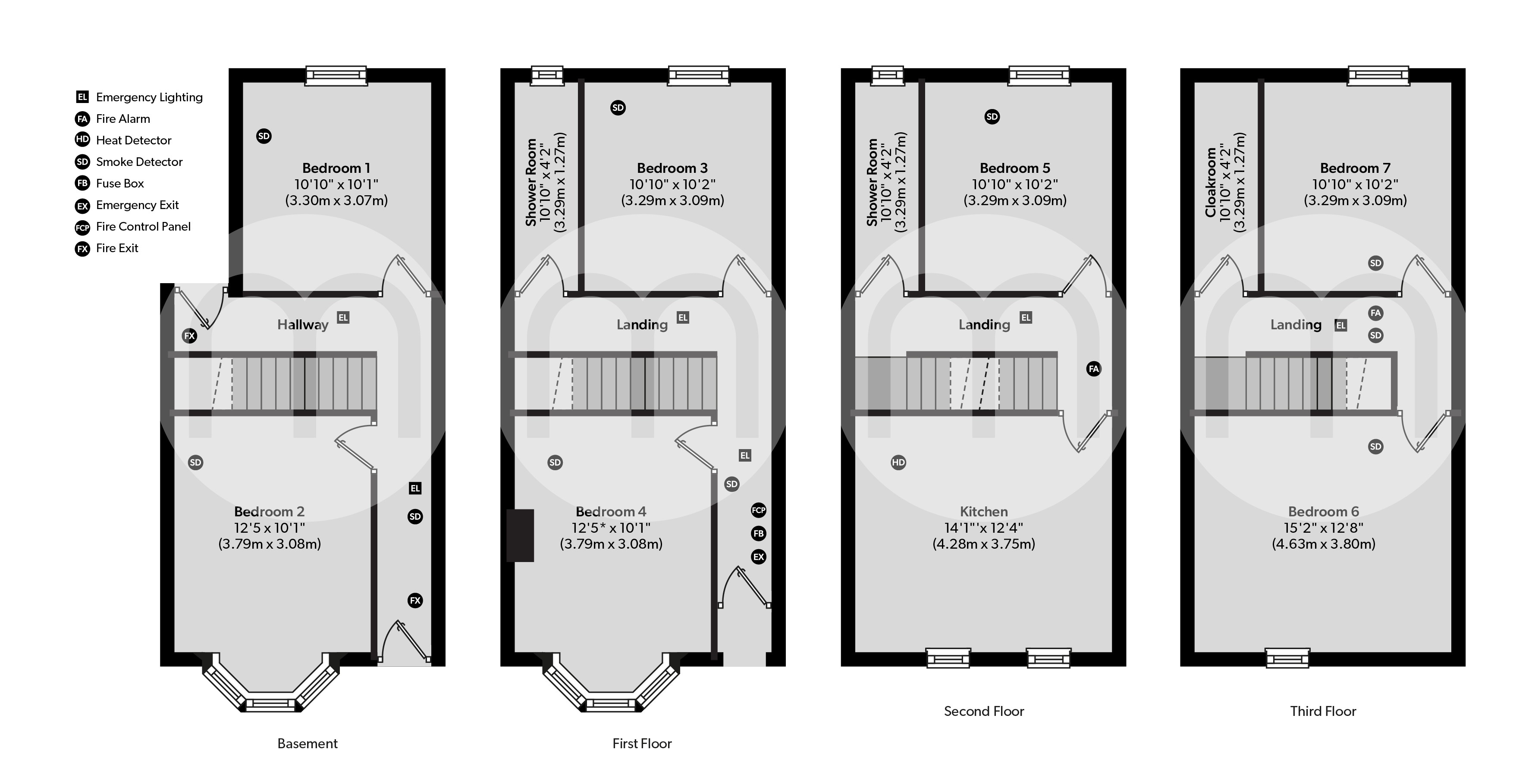
  • Arranged Over Four Storeys Including Basement
  • Seven Spacious Double Bedrooms Throughout
  • Two Shower Rooms Plus Separate Cloakroom
  • Large Kitchen With Dual Ovens, Hobs & White Goods Included
  • nclosed Rear Garden With Patio Area & Permit Parking Nearby
Floorplan Arrange a Viewing

Location

19 Alexandra Road, Colchester, CO3 3DB.

* Guide Price £400,000 to £425,000 *

Situated in a prime central location within walking distance of Colchester city centre, this substantial end-of-terrace property presents an exceptional opportunity to acquire a fully licensed, freehold House in Multiple Occupation (HMO), offered as a ready-made, income-producing investment.

Arranged over four storeys, including a basement level, the property is configured as a 7-bedroom HMO and is let to established tenants, generating an annual income of approximately £45,480, representing an attractive and stable return for investors. The accommodation is well suited to professional tenants, comprising seven generous double bedrooms arranged across each floor. The front rooms on the upper levels benefit from attractive bay windows, enhancing both natural light and overall appeal.

The property is supported by two shower rooms—one of which has been newly refurbished and features a WC and basin—alongside an additional separate cloakroom for convenience. A standout feature is the large, well-equipped kitchen, designed specifically for multi-occupancy living. It benefits from dual ovens, hobs and sinks, with white goods included, ensuring practicality for tenants and ease of management for landlords.

The property has been well maintained, including the installation of a new boiler in 2023, and holds an EPC rating of D. Externally, the property enjoys a generous enclosed rear garden, mainly laid to lawn, complemented by a patio area ideal for tenant use. The garden is enclosed by a mixture of panel fencing and brick walls, with gated access leading to the front.

Permit parking is also available on the surrounding roads. Access to the property is versatile, with entry available directly to the first floor via an external staircase, as well as a separate entrance to the ground floor—an advantageous feature for HMO configuration and tenant independence. Located close to a wide range of local amenities, shops, restaurants and transport links, this is a rare opportunity to secure a high-yielding investment.